Epworth Hall, Abbeyleix. Image: Google Maps
A new plan is being considered in Laois to extend a historic church, with a previous plan successfully contested by the local Tidy Towns committee.
Abbeyleix Tidy Towns had objected to the extension to Epworth Hall, on grounds that it would be too visible from the street. They were also concerned that the owners of the church, Laois Bible Church, had already demolished a heritage stone wall.
The plan was initially approved by Laois County Council but it was overturned by An Bord Pleanála in 2025 after an appeal by the Tidy Towns group. ABP went against its own inspector in its decision. It said that the proposed development at Epworth Hall would not respect the significant heritage, nor protect the outward and inward views and would be detrimental to the character and structure and its setting.
Laois County Council planners are soon due to make another decision on a different plan for Epworth Hall.
The owner, Laois Bible Church again seeks permission to demolish a temporary toilet/storage block that they had erected, and a timber fence and gate to the left side of Epworth Hall.
They again seek permission for the demolition of existing modern extensions and shed to rear of same.

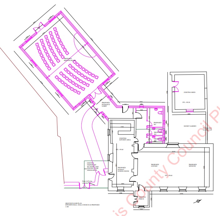
Drawing of the proposed extension (in pink) to Epworth Hall in Abbeyleix.
Then they plan to build a single storey flat roof extension to the rear comprising a new meeting room/parent room/stores at an angle to the existing building. It would be linked by a walkway. The original church would get internal alterations to provide new toilets and services, and a stairs and a first floor mezzanine gallery.
They again promise to reinstate a stone wall that had been demolished by them and replaced with the timber fence.
The new plan (below in pink) is more visible from Main Street, compared to the previous approved extension.

The church say they hold a service every Sunday morning for some 50 people, with an occasional evening service, and a small bible study meeting mid week.
They say that the extension is to allow them enough space to continue using the church.
Read next: Manhole disrupting sleep in Laois town
Epworth Hall, a former Methodist Church on Main Street, Abbeyleix, was built in 1826.
The application was submitted in December 2025 with a planning decision due by February 10, 2026.
Subscribe or register today to discover more from DonegalLive.ie
Buy the e-paper of the Donegal Democrat, Donegal People's Press, Donegal Post and Inish Times here for instant access to Donegal's premier news titles.
Keep up with the latest news from Donegal with our daily newsletter featuring the most important stories of the day delivered to your inbox every evening at 5pm.